Anno di realizzazione: 2018

Cosa succede quando un architetto e una “fabbra” decidono di unire le proprie visioni? Questo intervento di riqualificazione non è stato solo una sfida distributiva, ma un laboratorio creativo a cielo aperto, dove il tecnicismo del disegno ha incontrato la forza della materia. Progettare per chi conosce profondamente il linguaggio del fare significa operare senza confini precostituiti, trasformando il cantiere in un’estensione naturale dell’officina.




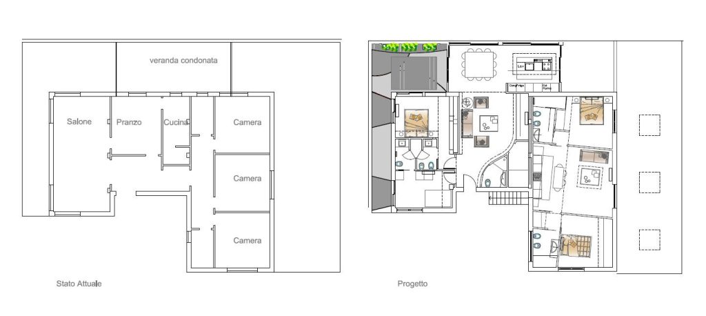
Partendo dalla necessità di garantire una nuova autonomia a due generazioni diverse, abbiamo trasformato un unico, grande appartamento al piano terra di una villa in due unità distinte. Il progetto si è mosso su un doppio binario: da un lato la rigorosa divisione degli spazi, volta a preservare la privacy e l’indipendenza dei figli; dall’altro la ricerca estetica assoluta, nutrita da un dialogo costante tra progettista e committenza.


Ogni dettaglio — dagli infissi realizzati ad hoc agli arredi nati tra le scintille e il calore del metallo — è stato seguito passo dopo passo, dalla prima intuizione su carta fino al montaggio finale. Il risultato è un’opera corale, dove il recupero di materiali industriali e la sapienza artigianale si fondono per dare vita a un’abitazione capace di raccontare, in ogni spigolo e in ogni saldatura, la storia di chi l’ha sognata e costruita.




